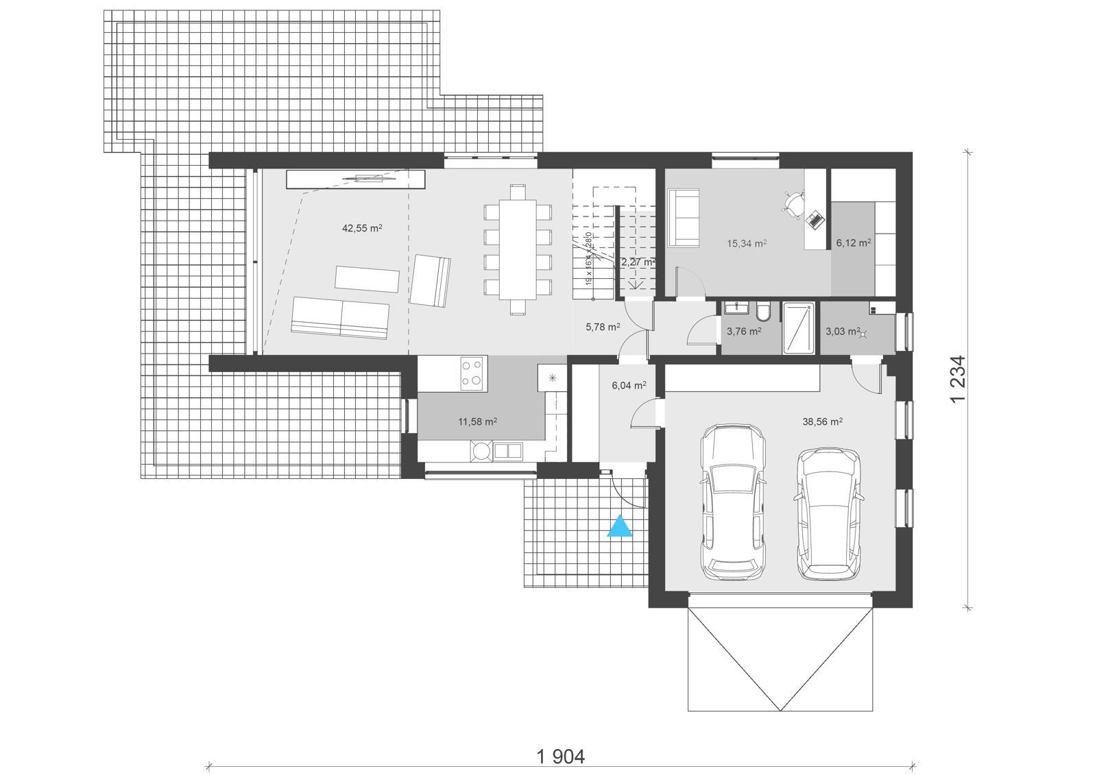
Projekt domu uA92 jest to nowoczesny, piętrowym dom z wysokim salonem. Projekt ten ma wraz z garażem dwustanowiskowym ma 212 m2 powierzchni, co czyni go idealnym dla dużej rodziny. uA92 zaprojektowany został zgodnie z najnowszymi trendami w architekturze jednorodzinnej. Ciekawej formie bryle nadaje połączenie dachów dwuspadowych i płaskim dachem nad garażem oraz nowoczesna lukarna od strony frontu. Cechą charakterystyczną tego projektu jest duże, dwukondygnacyjne przeszklenie od strony salonu, które otwiera cały dom na ogród i zapewnia poczucie przestrzeni. Do domu wchodzimy zadaszonym wejściem, a następnie przez wiatrołap przechodzimy do części dziennej. W strefie dziennej znajduje się przestronny, jasny salon z jadalnią, kuchnia, toaleta oraz dodatkowy pokój, który służyć może jako gabinet. Górna kondygnacja to strefa nocna. Znajdują się tam trzy przestronne sypialnie, każda ze swoją garderobą. Jedna z sypialni typu master- czyli z łazienką i garderobą. Na górze zlokalizowano również ogólnodostępną łazienkę z pralnią. uA92 jest to projekt, który cechuje wysoki komfort użytkowania oraz przestrzeń we wnętrzach.
Technologia:
Fundamenty: bloczek betonowy, lany beton
Ściany: gazobeton, silikaty, cermika
Strop: żelbet
Dach: więźba dachowa, blacha
Ogrzewanie: gaz, podłogowe
Wentylacja: mechaniczna


















